












VILLA SCHLIERBACH
Description
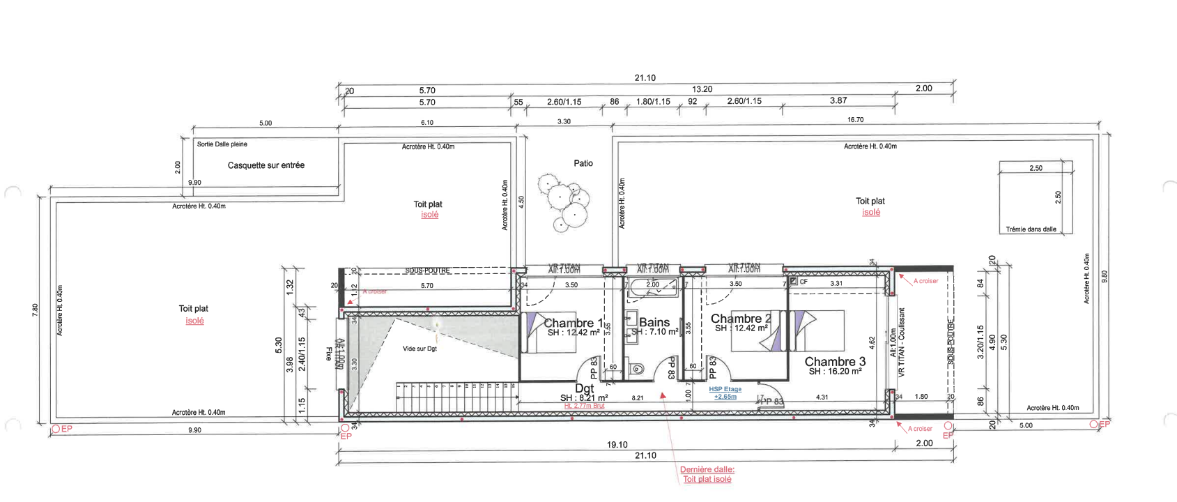
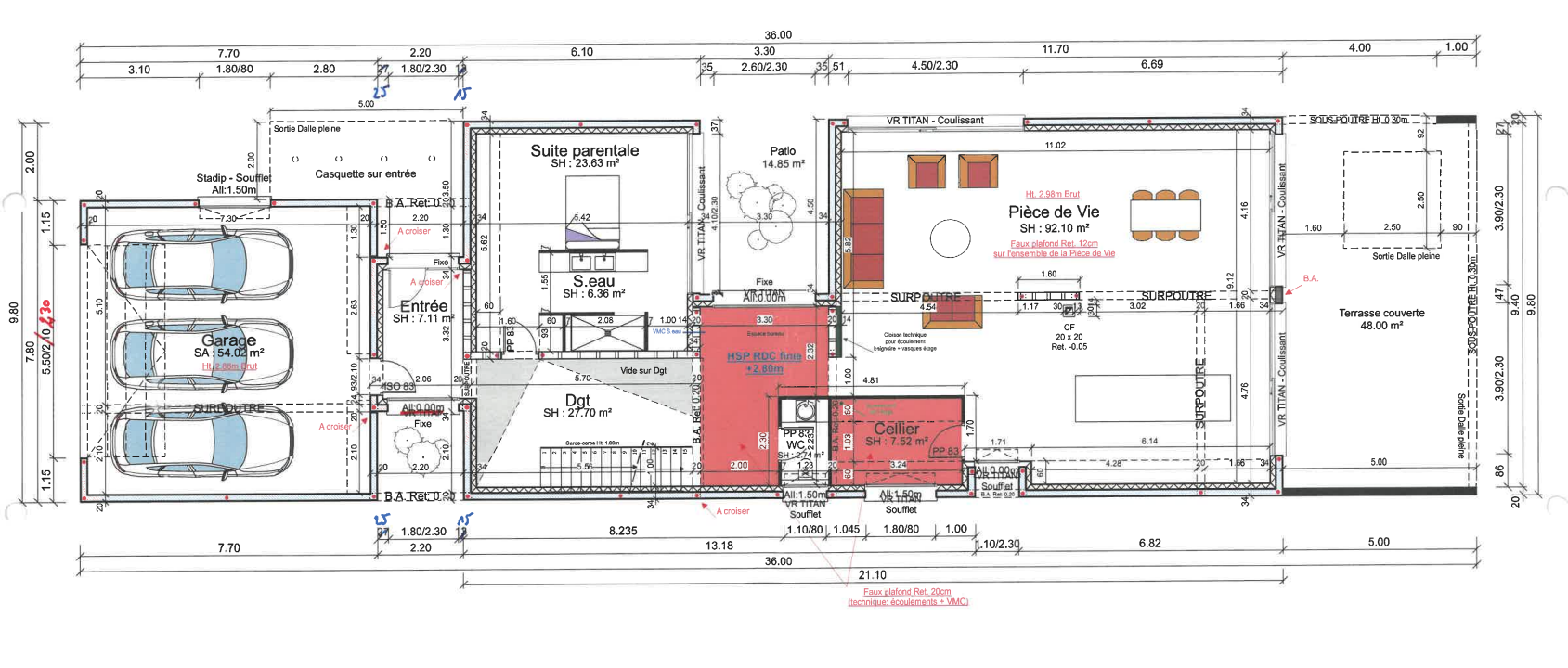
Située dans les hauteurs de Schlierbach, proche frontière SUISSE dans un environnement résidentiel rare et privilégié, découvrez cette villa d’exception aux lignes contemporaines, offrant 225 m2 habitables, un sous-sol de 175 m2, et des prestations haut de gamme. Implantée sur un grand terrain de 15,65 ares, la propriété bénéficie d’une vue totalement dégagée et d’un cadre de vie unique, alliant confort, design et tranquillité. Dès l’entrée, vous serez séduit par un hall majestueux avec vide sur séjour, offrant une impression de volume et de lumière exceptionnelle.La pièce de vie de 92 m2, largement ouverte grâce à ses nombreuses baies vitrées, offre un espace convivial et élégant, tourné vers l'extérieur. Egalement deux patios avec olivier vous offre une atmosphere reposante. La villa propose une véritable vie de plain-pied grâce à sa suite parentale au rez-de-chaussée, comprenant chambre, salle d’eau et espace dressing. À l’étage, retrouvez 3 chambres supplémentaires, et une salle de bains. Le sous-sol de 175 m2 offre de nombreuses possibilités d’aménagement (rangements, salle de sport, atelier, cave à vins etc.), et le garage de 54 m2 permet de stationner facilement plusieurs véhicules. Construite avec des matériaux haut de gamme, elle bénéficie d’un chauffage par pompe à chaleur air/eau avec plancher chauffant, ainsi que de la climatisation, pour un confort optimal en toute saison. Les menuiseries aluminium renforcent l’esthétique contemporaine et la qualité de l’ensemble. À l’extérieur, vous profitez d’une première terrasse couverte de 48m2 avec olivier implanté dans celle-ci, d'une piscine avec une seconde terrasse, d’un pool house et de vastes espaces pour recevoir ou se détendre tout en admirant la vue dégagée, rare sur le secteur. La maison a été construite aux normes RE2020. Disponible rapidement. Frais de notaire à 2,5%.
Caractéristiques
- Année de construction : 2025
- Type de chauffage : Au sol
- Énergie : Pompe a chaleur
- Chauffage individuel
- Terrasse
- 1 Parking
- 1 Garage
- Piscine
Performance Énergétique
Diagnostic de Performance Énergétique
Émissions de Gaz à Effet de Serre
Montant estimé des dépenses annuelles d'énergie pour un usage standard est compris entre 1 500 € et 1 800 €. Prix moyens des énergies indexés sur les années 2021, 2022 et 2023 (abonnements compris).
Information : Les diagnostics de performance énergétique (DPE) permettent d'estimer la consommation énergétique et les émissions de gaz à effet de serre d'un logement. Les classes vont de A (très performant) à G (peu performant).
Localisation
Contacter l'agent

Chloé SOBCZYK
Associé & Agent Immobilier