


T2 au centre de BARTENHEIM
Description
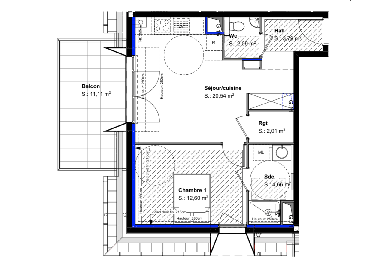
INVESTISSEMENT LOCATIF ou 1er ACHAT : Ce programme situé en plein centre de BARTENHEIM comprend un bâtiment de 18 logements, offrant des espaces lumineux et modulables. Vous aurez la possibilité de personnaliser votre appartement en fonction de l’avancement du chantier, afin qu’il corresponde parfaitement à vos besoins et vos goûts. TRAVAUX DEMARRÉS. T2 de 45,69m2 avec 11,11m2 situé au 1er et dernier étage d'une petite copropriété. Orientation SUD-OUEST / Isolation renforcée / porte blindée / Ascenseur a tous les niveaux / volets motorisés ... Axe frontalier MULHOUSE - BALE. Contactez-nous pour plus de renseignements. D'autres lots disponibles : KEMBS / LANDSER / SAINT LOUIS / HESINGUE
Caractéristiques
- Année de construction : 2026
- Balcon
Performance Énergétique
Diagnostic de Performance Énergétique
Émissions de Gaz à Effet de Serre
Montant estimé des dépenses annuelles d'énergie pour un usage standard est compris entre 700 € et 1 000 €. Prix moyens des énergies indexés sur les années 2021, 2022 et 2023 (abonnements compris).
Information : Les diagnostics de performance énergétique (DPE) permettent d'estimer la consommation énergétique et les émissions de gaz à effet de serre d'un logement. Les classes vont de A (très performant) à G (peu performant).
Localisation
Contacter l'agent

Paul FALLET
Associé & Agent Immobilier