Espace propriétaire
fr

Votre recherche

Schlierbach (68440)

6 pièces - 225 m²

VILLA SCHLIERBACH

1 450 000 €
Ref : 247
Découvrir le bien

Située dans les hauteurs de Schlierbach, proche frontière SUISSE dans un environnement résidentiel rare et privilégié, découvrez cette villa d’exception aux lignes contemporaines, offrant 225 m² habitables, un sous-sol de 175 m², et des prestations haut de gamme.

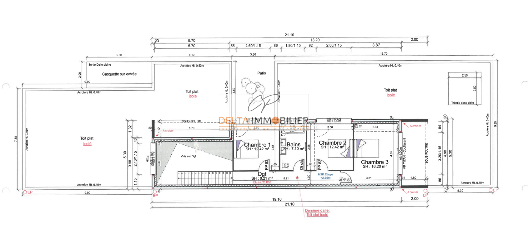
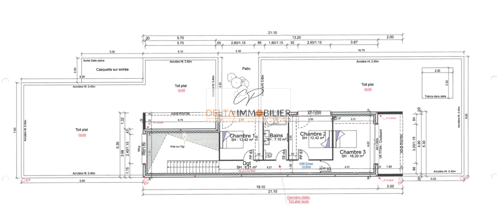
Implantée sur un grand terrain de 15,65 ares, la propriété bénéficie d’une vue totalement dégagée et d’un cadre de vie unique, alliant confort, design et tranquillité. Dès l’entrée, vous serez séduit par un hall majestueux avec vide sur séjour, offrant une impression de volume et de lumière exceptionnelle.La pièce de vie de 92 m², largement ouverte grâce à ses nombreuses baies vitrées, offre un espace convivial et élégant, tourné vers l'extérieur. Egalement deux patios avec olivier vous offre une atmosphere reposante.

La villa propose une véritable vie de plain-pied grâce à sa suite parentale au rez-de-chaussée, comprenant chambre, salle d’eau et espace dressing. À l’étage, retrouvez 3 chambres supplémentaires, et une salle de bains. Le sous-sol de 175 m² offre de nombreuses possibilités d’aménagement (rangements, salle de sport, atelier, cave à vins etc.), et le garage de 54 m² permet de stationner facilement plusieurs véhicules.
Construite avec des matériaux haut de gamme, elle bénéficie d’un chauffage par pompe à chaleur air/eau avec plancher chauffant, ainsi que de la climatisation, pour un confort optimal en toute saison. Les menuiseries aluminium renforcent l’esthétique contemporaine et la qualité de l’ensemble.
À l’extérieur, vous profitez d’une première terrasse couverte de 48m2 avec olivier implanté dans celle-ci, d'une piscine avec une seconde terrasse, d’un pool house et de vastes espaces pour recevoir ou se détendre tout en admirant la vue dégagée, rare sur le secteur.
 
La maison a été construite aux normes RE2020. Disponible rapidement. Frais de notaire à 2,5%.
TRAD_ZEPHYR_Caracteristique TRAD_ZEPHYR_Valeurs
Code postal 68440
surface terrain 1 565 m²
Nombre de chambre(s) 4
Nombre de pièces 6
Nombre de niveaux 3
Vue Champs
TRAD_ZEPHYR_Caracteristique TRAD_ZEPHYR_Valeurs
Nb de salle de bains 2
Cuisine Américaine
Mode de chauffage Pompe à chaleur
Type de chauffage Au sol
Format de chauffage Individuel
Interphone OUI
Terrasse OUI
Nombre de garage 1
Nombre de parking 2
Exposition Nord-Ouest
Année de construction 2025
TRAD_ZEPHYR_Caracteristique TRAD_ZEPHYR_Valeurs
Copropriété NON
TRAD_ZEPHYR_Caracteristique TRAD_ZEPHYR_Valeurs
Prix de vente 1 450 000 €
Les honoraires d'agence seront intégralement à la charge du vendeur  
DPE GES
  • Commerces et santé
  • Loisirs
  • Ecoles
  • Transports
  • Pratique
Contacter pour ce bien
L'agence
Téléphone 0636679483
Adresse
120 rue de l'Île de Napoléon 68170 Rixheim

* Champ obligatoire

Les informations recueillies sur ce formulaire sont enregistrées dans un fichier informatisé par La Boite Immo agissant comme Sous-traitant du traitement pour la gestion de la clientèle/prospects de l'Agence / du Réseau qui reste Responsable du Traitement de vos Données personnelles. La base légale du traitement repose sur l'intérêt légitime de l'Agence / du Réseau. Elles sont conservées jusqu'à demande de suppression et sont destinées à l'Agence / au Réseau. Conformément à la loi « informatique et libertés », vous disposez des droits d’accès, de rectification, d’effacement, d’opposition, de limitation et de portabilité de vos données. Vous pouvez retirer votre consentement à tout moment en contactant directement l’Agence / Le Réseau. Consultez le site https://cnil.fr/fr pour plus d’informations sur vos droits. Si vous estimez, après avoir contacté l'Agence / le Réseau, que vos droits « Informatique et Libertés » ne sont pas respectés, vous pouvez adresser une réclamation à la CNIL. Nous vous informons de l’existence de la liste d'opposition au démarchage téléphonique « Bloctel », sur laquelle vous pouvez vous inscrire ici : https://www.bloctel.gouv.fr Dans le cadre de la protection des Données personnelles, nous vous invitons à ne pas inscrire de Données sensibles dans le champ de saisie libre.
Ce site est protégé par reCAPTCHA, les Politiques de Confidentialité et les Conditions d'Utilisation de Google s'appliquent.

Découvrir nos outils